Продажа 5-к.квартира, 137 м², 8/18 эт.ID 7639

Подробнее

Расположение
Характеристики
  • Тип недвижимостиКвартиры
  • Количество комнат5
  • Общая площадь137 м²
  • Жилая площадь83.2 м²
  • Площадь кухни17.8 м²
  • Этаж8
  • Этажей в доме18
  • Тип домамонолитный
  • Апартаментынет
  • Пентхауснет
  • Количество спален3
  • Совмещенные санузлы3
  • Ремонтбез ремонта
  • Состояние объектаотличное
  • Вид из оконво двор и на улицу
  • Мусоропроводнет
  • Высота потолков6.5 м.
  • Год постройки дома2022 г.
  • Пассажирский лифт1
  • Грузовой лифт1
  • Наличие охраняемой парковкида
  • Тип парковкиподземная
  • Тип продажиСвободная продажа
  • Название жилого комплексаЖК «Событие»
ID 7639
64 000 000
Валюта

Заинтересовал объект?

Оставьте ваш номер телефона и мы Вам перезвоним

Позвонить мне

Карта

Описание

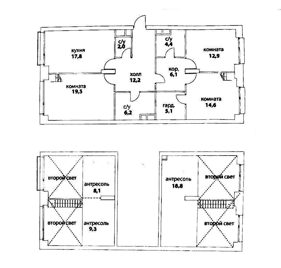
Предлагаем на покупку двухуровневую квартиру общей площадью 137 кв.м. в ЖК "Событие". Высокие потолки 6 м. 50 см. - в жилых зонах и 4 м. 50 см. - в нежилых. Второй свет. Панорамные окна ориентированы на 2 стороны и выходят в уютный двор дома и на тихую улицу. Площадь квартиры возможно увеличить до 160 кв.м. за счет 2-го этажа.
В квартире возможно реализовать следующее планировочное решение:
1 уровень: просторная кухня-гостиная, 2 спальни, гардеробная комната, 3 с\у.
2 уровень: 2 спальни, кабинет, с\у.

СОБЫТИЕ - уникальный европейский квартал, расположенный на западе Москвы в районе Раменки. Район отличает высокая транспортная доступность, современная инфраструктура и десятки объектов для занятия различными видами спорта. Пространства с зонами для спорта, работы и отдыха доступны только жителям дома и их гостям.
В ЖК Событие есть всё для комфортной и безопасной жизни: подземный паркинг с достаточным количеством машиномест и кладовых помещений, охраняемые дворы без машин со множеством возможностей для отдыха детей и взрослых (в т.ч. лаунж-зоны на террасах, расположенные на крышах и доступные для жителей и гостей дома). Современные охранные системы и системы видеонаблюдения. Около половины квартала (24 ГА) отдано парку Событие с грандиозным благоустройством (парк уже открыт). Также в квартале будут построены 2 школы и 2 детских сада, а в домах появятся детские клубы, фитнес-румы, кафе, супермаркеты и т.д., дополнив существующую в районе инфраструктуру.

Дом сдан в декабре 2022г. Имеется семейное машиноместо на 2 автомобиля в подземном паркинге (в указанную стоимость не входит)

Мы используем файлы cookie, чтобы обеспечить вам наилучший доступ к нашему веб-сайту

10
Наталья
Позвоните или напишите нам в WhatsApp для консультации
    WhatsAppTelegramViber